












2 Bedrooms 2 Bathrooms 1 Reception
Flat
14 Photos
Chiswick
Available NOW
Furnished
TBC Deposit
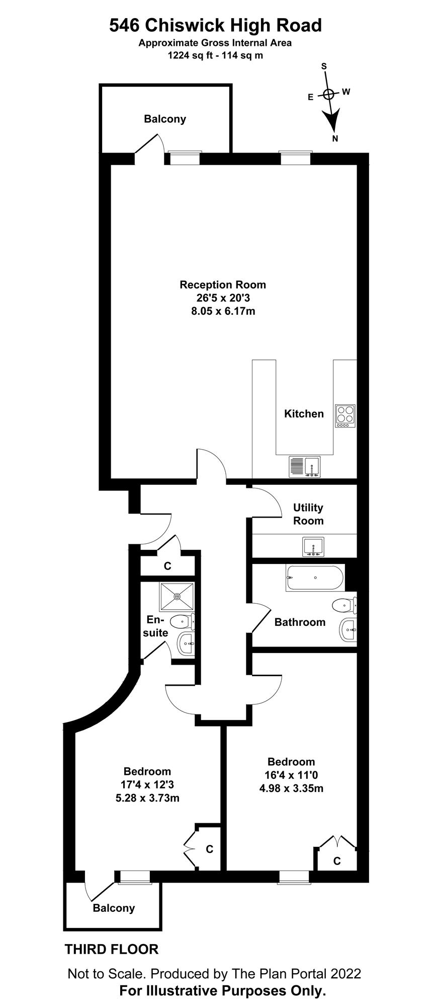
**Short Let Basis - all bills inclusive** This modern two-bedroom apartment with dual balconies is located right on Chiswick High Road. Set within a secure contemporary development. This apartment offers a perfect blend of comfort, convenience, and location. The property features, Two double bedrooms, including a principal bedroom with en suite shower and private balcony overlooking the Gunnersbury Triangle Nature Reserve, Second double bedroom with fitted wardrobes, Spacious open-plan living area with a sleek modern kitchen, integrated appliances, and wood flooring. There is also a balcony overlooking the vibrant Chiswick High Road. We also have a Contemporary main bathroom, separate laundry room and large storage cupboard off the hallway. The property comes with a Designated underground parking space. This well-maintained flat is part of a modern, secure development ideally located for commuters—just a short walk from Chiswick Park (District Line) and Gunnersbury Station (District Line & Overground), with easy access to the A4/M4, EPC rating: C, Council tax band: F, Available now.
Reference: BOR1001631
Tenant Fees
Borthwicks require one weeks rental amount as a holding fee which is reimbursed towards your deposit on move in. Move in will be pending references and relevant checks. We also require 5 weeks deposit and one months rent before move in. Further info available online or from the staff at Borthwicks.
Disclaimer
These particulars are intended to give a fair description of the property but their accuracy cannot be guaranteed, and they do not constitute an offer of contract. Intending purchasers must rely on their own inspection of the property. None of the above appliances/services have been tested by ourselves. We recommend purchasers arrange for a qualified person to check all appliances/services before legal commitment.
Contact Borthwicks for more details
3 Chiswick Park Station, London, W4 5NF | 0208 994 8441 | paul@borthwicks.co.uk