






1 Bedroom 1 Bathroom 1 Reception
Flat
8 Photos
Acton
Outstanding One Bedroom Flat with Private Terrace
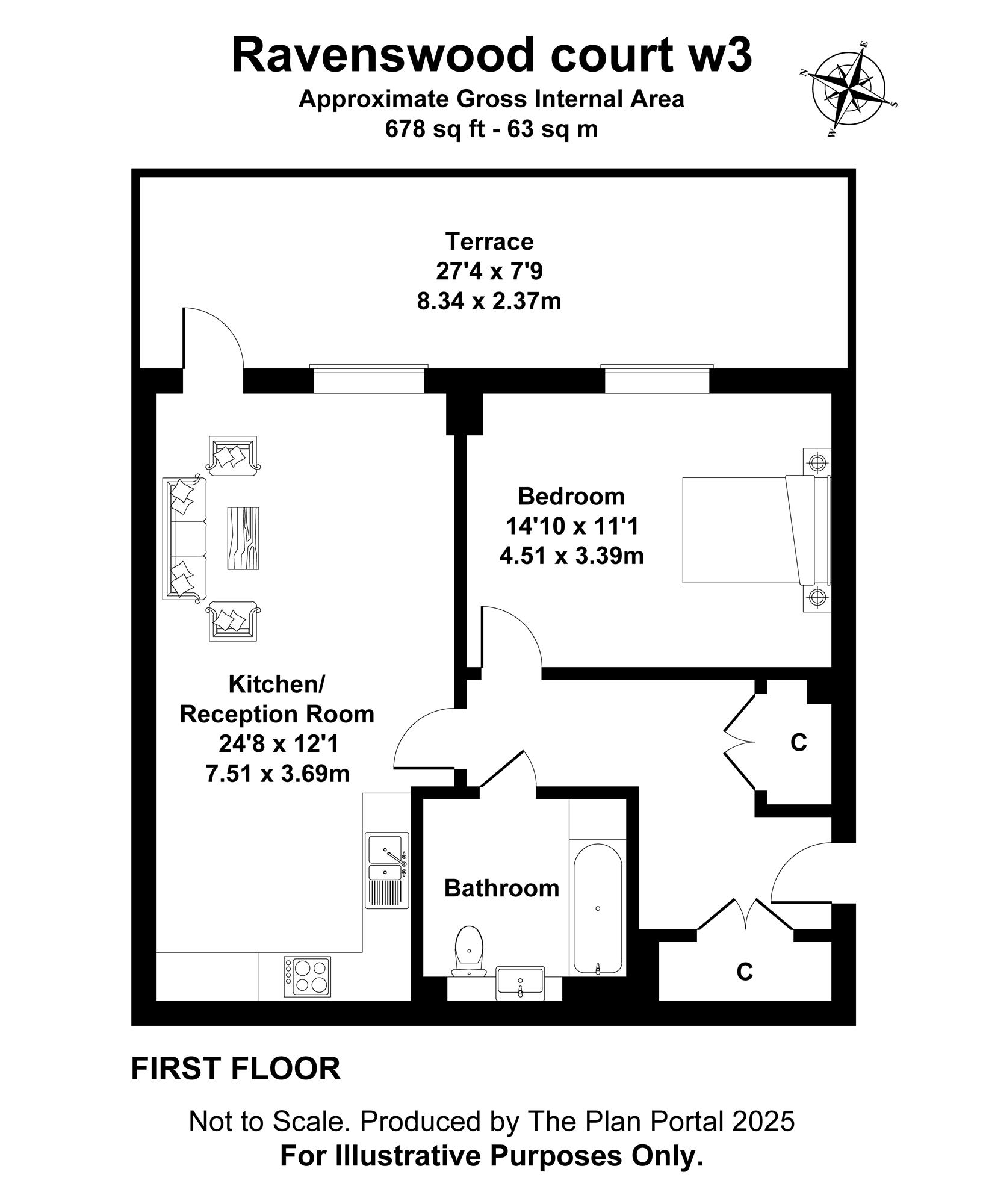
An exceptional, bright, and modern one-bedroom first-floor flat with lift access and a private terrace, set within the sought-after Ravenswood Court development on the Chiswick/Acton borders.
Presented in immaculate condition throughout and offered to the market with no onward chain, this stylish home combines contemporary design with generous proportions and excellent ceiling heights.
The accommodation comprises a welcoming entrance hallway with a large storage cupboard housing the washer/dryer, a spacious double bedroom with fitted wardrobes, a sleek modern bathroom, and an impressive open-plan kitchen and reception room with space for dining. Doors from the reception opens onto a large private terrace, ideal for relaxing or entertaining.
Further benefits include lift access, plantation shutters, secure bike storage, and access to a large, child-friendly communal garden.
Perfectly positioned within walking distance of both Chiswick High Road and Acton High Street, the property enjoys superb transport links via South Acton (Overground), Acton Town (District & Piccadilly Lines), local bus routes, and convenient road access to the A40/M40.
Leasehold: 240 years remaining
Service Charge: £3,312 per annum
Ground Rent: £250 per annum
EPC Rating: B
Council Tax Band: C (£1,814 per annum)
No onward chain
Lounge 7.51m (24' 8") x 3.69m (12' 1")
Bedroom 4.51m (14' 10") x 3.39m (11' 1")
Reference: BOR1001568
Disclaimer
These particulars are intended to give a fair description of the property but their accuracy cannot be guaranteed, and they do not constitute an offer of contract. Intending purchasers must rely on their own inspection of the property. None of the above appliances/services have been tested by ourselves. We recommend purchasers arrange for a qualified person to check all appliances/services before legal commitment.
Contact Borthwicks for more details
3 Chiswick Park Station, London, W4 5NF | 0208 994 8441 | paul@borthwicks.co.uk